ESTÉTICA INDUSTRIAL
-
UBICACIÓNPuebla, Mexico
-
AÑO2012 - 2014
-
SUPERFICIE CONSTRUIDA1,020 m2
-
DIRECTOR DE PROYECTOLeonardo Neve, Diego Vilatela
-
EQUIPO DE DISEÑOOlivia Gil, Andrés Miranda, Carolina Ojeda, Jesus Quintana, Angel Valerio, Javier Flores
-
FOTOGRAFÍAPatrick Lopez Jaimes
-
ESTATUSConstruido


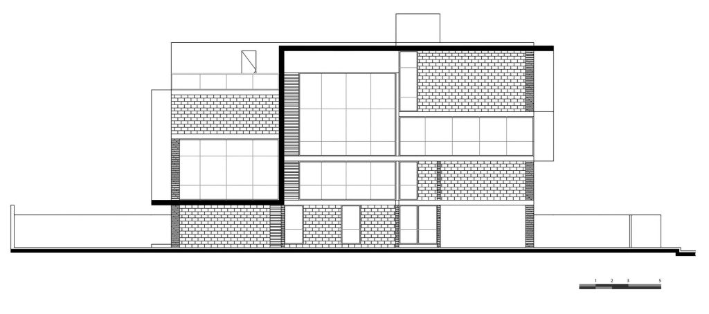
Constitución 8 es un edificio residencial de departamentos en la ciudad de Puebla, México, ubicado en una zona de gran crecimiento. Surge como un desarrollo para venta inmobiliaria bajo la premisa de hacer cada departamento único. La idea del proyecto repele la planta tipo desde su concepción bajo el principio de máxima adaptabilidad, generando 10 departamentos distintos y expresivos.
La creación de espacios individuales se logra mediante el desfase tanto en planta como en sección. Los volúmenes de los departamentos se desplazan libremente hacia afuera y adentro, arriba y abajo. Los desfases horizontales generan espacios más amplios en los interiores de los departamentos mientras que en el nivel superior se generan terrazas y balcones. Los desfases verticales generan dobles alturas en algunos espacios y cambios de nivel en otros. Haciendo al proyecto característico y dinámico.
Otra idea rectora para el proyecto es la integración al contexto mediante la búsqueda de iluminación y ventilación en todos los espacios, la integración de vistas interesantes de la ciudad y naturaleza circundante. Se generaron distintas áreas de esparcimiento y convivencia. Un jardín común en planta baja y una terraza panorámica en la azotea, logrando dominar el panorama vecino.


El edificio mantiene una estética industrial inspirado en la tendencia de diseño de los Loft, logrando espacios abiertos que responden a la manera de vivir contemporánea. Se seleccionaron materiales aparentes como el cristal, block y tabique aparente para brindar calidez así como un bajo costo de mantenimiento.
Para el interior de los departamentos se diseñaron de manera individual todos los elementos de carpintería (closets y cocinas), iluminación (luminarias y tuberías expuestas) y grifería (manerales y llaves). Logrando de esta manera un ambiente de exclusividad, personalizado y distinto.
Constitución 8 se convierte en un edificio con un diseño atrevido y sofisticado, donde elementos de carácter dominante logran espacios placenteros.




